Villa a schiera in vendita

Marano Principato, Via Pietre Bianche
€ 135.000
4 locali 4 locali
140 Mq 140 Mq
2 bagni 2 bagni

Villa a schiera in vendita

Marano Principato, Via Pietre Bianche

Descrizione annuncio

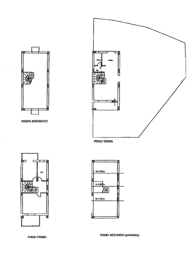
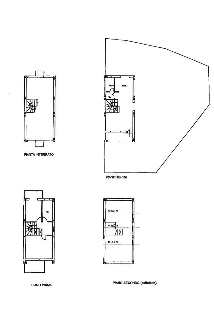
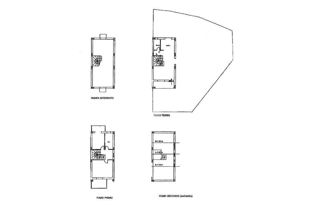
Su Marano Principato, proponiamo in vendita una porzione angolare di villa a schiera.

L'immobile si sviluppa su più livelli, permettendo una distribuzione funzionale degli spazi.

Al piano terra, si trova un soggiorno, la cucina e un bagno. Sia il soggiorno che la cucina si affacciano direttamente sul giardino privato, ideale per momenti di relax e di convivialità all'aperto.

La zona notte, situata al piano superiore, comprende due camere da letto, un bagno e due balconi.

Completano la proprietà un sottotetto unico ambiente, che si presta ad essere utilizzato come terza camera o anche come deposito e cambio stagione; e un piano interrato, unico ambiente con camino e angolo cottura, ideale per momenti di svago e per ospitare amici e familiari.

Per visionare l'immobile siamo a vostra disposizione dal lunedì al sabato, telefonando in agenzia per fissare un appuntamento.


Garantiamo, inoltre, la nostra assistenza nella fase di acquisto, nel post vendita e per l'ottenimento del mutuo, mediante i consulenti finanziari della Kiron, società di mediazione creditizia del gruppo Tecnocasa, che sono a vostra disposizione, direttamente nella nostra agenzia, per una consulenza gratuita e personalizzata.

Mostra tutto

Caratteristiche

Rif.:
61172753
Piano:
Su più livelli di 2
Totale piani:
2
Posti auto:
1
Balconi:
2
Camere da letto:
2
Mostra tutto
Prezzo Prezzo
€ 135.000
Rata mutuo Rata mutuo
€ 641 / mese
Spese annue Spese annue
€ 0
Proponi il tuo prezzoProponi il tuo prezzo

Classe Energetica

F
F
F
F
F
F
F
F
F
EP globale non rinnovabile:
199.93 kW h/m² anno
EP globale rinnovabile:
2.94 kW h/m² anno
EP invernale del fabbricato:
EP estiva del fabbricato:
Anno di costruzione:
2005
Riscaldamento:
Autonomo
Tipo impianto:
A radiatori
Tipo alimentazione:
Metano

Ti interessa visionare l'immobile?

Fissa un appuntamento  Fissa un appuntamento

Richiedi informazioni

Clicca su Leggi per aprire l'informativa
* Questi campi sono obbligatori

Calcola il tuo mutuo

Semplice e senza impegno
Anticipo

( % )
Mutuo

( % )

pochi semplici passi

inserisci i tuoi dati
Questionario completato
Grazie per aver richiesto un appuntamento senza impegno con un nostro Consulente del Credito e Assicurativo.

Hai inserito correttamente tutti i dati necessari e a breve riceverai una e-mail con un link da convalidare per inviare i tuoi dati.
Affiliato
Studio Andreotta D.I.
Viale Della Resistenza, 51 87040 Castrolibero (CS)

Il nostro staff


  • Marzio Beniamino Franco
    Affiliato

  • Luisa Giordano
    Coordinatrice
Viale Della Resistenza, 51 87040 Castrolibero (CS)
Zona: Castrolibero - Marano P.- Marano M.
Mostra su mappa
Orari: dal lunedì al venerdì 9.00/13.00 -16.00/20.30 - sabato 9.00/13.00
Affiliato
Studio Andreotta D.I.
Viale Della Resistenza, 51 87040 Castrolibero (CS)

2026 Tecnocasa Franchising S.p.A. - P. IVA 08365160152 - Via Monte Bianco 60/A 20089 Rozzano (MI). Ogni agenzia ha un proprio titolare ed è autonoma. Privacy policy | Policy utilizzo | Cookie policy