Trilocale in vendita

Marano Principato, Via San Francesco di Paola
€ 63.000
3 locali 3 locali
72 Mq 72 Mq
2 bagni 2 bagni

Trilocale in vendita

Marano Principato, Via San Francesco di Paola

Descrizione annuncio

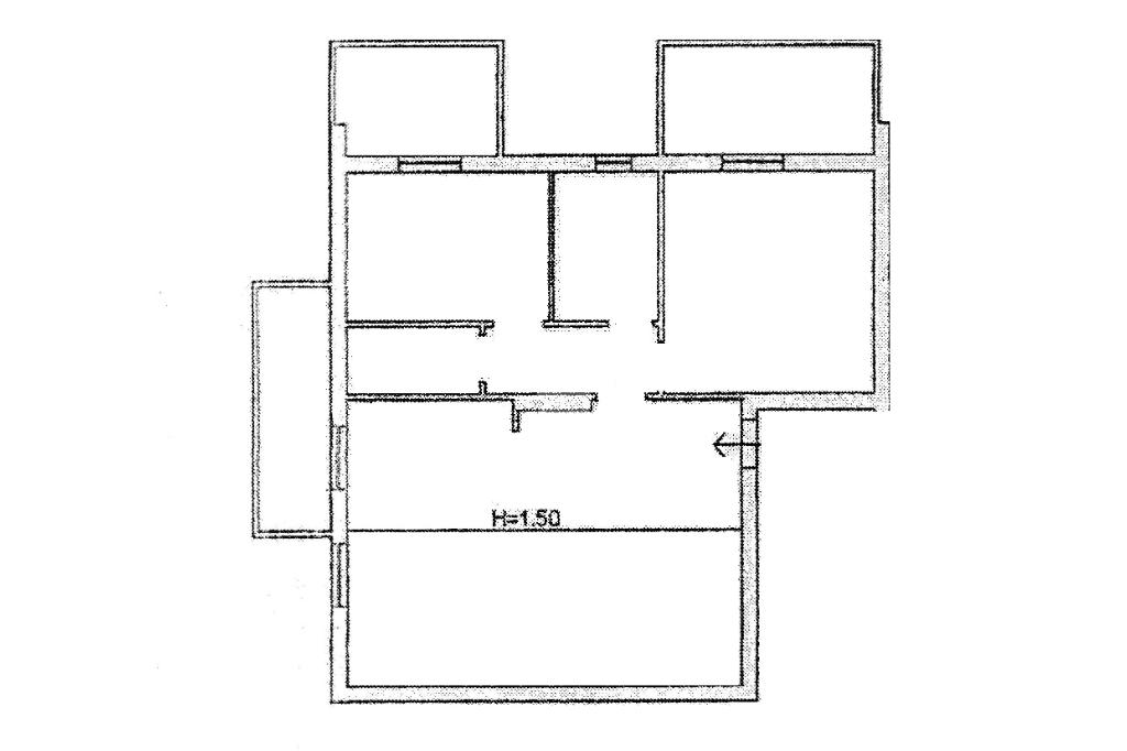
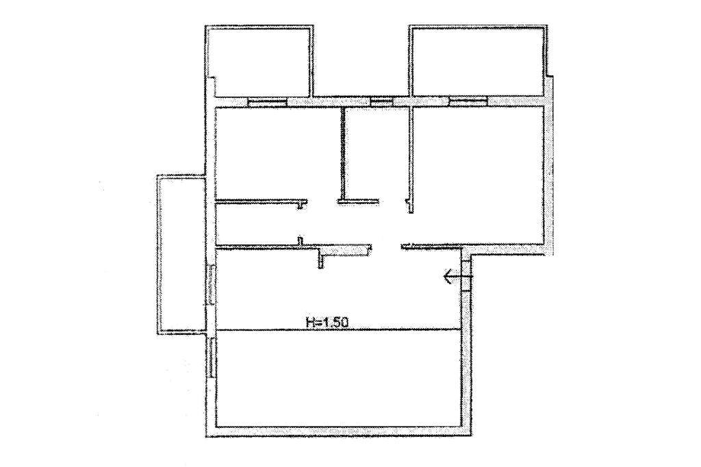
Su Marano Principato, proponiamo in vendita un appartamento mansardato accogliente situato all'ultimo piano di un edificio.

L'immobile offre spazi ben distribuiti e funzionali, e si compone di tre locali, ideali per chi cerca un ambiente confortevole e pratico, con soggiorno con camino e angolo cottura, 2 camere da letto, 2 bagni, 3 balconi e parte adibita a soffitta-ripostiglio.

La disposizione interna è studiata per garantire luminosità e comfort, rendendo ogni ambiente piacevole da vivere.

La posizione dell'immobile permette di godere della tranquillità del comune, pur essendo a breve distanza dai principali servizi e collegamenti.

Questa soluzione abitativa rappresenta un'opportunità interessante per chi desidera un'abitazione moderna e ben tenuta, in un contesto residenziale tranquillo.

Per visionare l'immobile siamo a vostra disposizione dal lunedì al sabato, telefonando in agenzia per fissare un appuntamento.


Garantiamo, inoltre, la nostra assistenza nella fase di acquisto, nel post vendita e per l'ottenimento del mutuo, mediante i consulenti finanziari della Kiron, società di mediazione creditizia del gruppo Tecnocasa, che sono a vostra disposizione, direttamente nella nostra agenzia, per una consulenza gratuita e personalizzata.

Mostra tutto

Caratteristiche

Rif.:
61168767
Piano:
2 di 3 (ultimo Piano)
Balconi:
3
Camere da letto:
2
Arredamento:
Parziale
Condizionamento:
Autonomo
Mostra tutto
Prezzo Prezzo
€ 63.000
Rata mutuo Rata mutuo
€ 299 / mese
Spese annue Spese annue
€ 240
Proponi il tuo prezzoProponi il tuo prezzo

Classe Energetica

E
E
E
E
E
E
E
E
E
EP globale non rinnovabile:
84.72 kW h/m² anno
EP globale rinnovabile:
1.74 kW h/m² anno
EP invernale del fabbricato:
EP estiva del fabbricato:
Anno di costruzione:
2007
Riscaldamento:
Autonomo
Tipo impianto:
A radiatori
Tipo alimentazione:
Metano

Ti interessa visionare l'immobile?

Fissa un appuntamento  Fissa un appuntamento

Richiedi informazioni

Clicca su Leggi per aprire l'informativa
* Questi campi sono obbligatori

Calcola il tuo mutuo

Semplice e senza impegno
Anticipo

( % )
Mutuo

( % )

pochi semplici passi

inserisci i tuoi dati
Questionario completato
Grazie per aver richiesto un appuntamento senza impegno con un nostro Consulente del Credito e Assicurativo.

Hai inserito correttamente tutti i dati necessari e a breve riceverai una e-mail con un link da convalidare per inviare i tuoi dati.
Affiliato
Studio Andreotta D.I.
Viale Della Resistenza, 51 87040 Castrolibero (CS)

Il nostro staff


  • Marzio Beniamino Franco
    Affiliato

  • Luisa Giordano
    Coordinatrice
Viale Della Resistenza, 51 87040 Castrolibero (CS)
Zona: Castrolibero - Marano P.- Marano M.
Mostra su mappa
Orari: dal lunedì al venerdì 9.00/13.00 -16.00/20.30 - sabato 9.00/13.00
Affiliato
Studio Andreotta D.I.
Viale Della Resistenza, 51 87040 Castrolibero (CS)

2026 Tecnocasa Franchising S.p.A. - P. IVA 08365160152 - Via Monte Bianco 60/A 20089 Rozzano (MI). Ogni agenzia ha un proprio titolare ed è autonoma. Privacy policy | Policy utilizzo | Cookie policy