Casa indipendente in vendita

Marano Marchesato, Via Telesio
€ 130.000
3 locali 3 locali
121 Mq 121 Mq
1 bagno 1 bagno

Casa indipendente in vendita

Marano Marchesato, Via Telesio

Descrizione annuncio

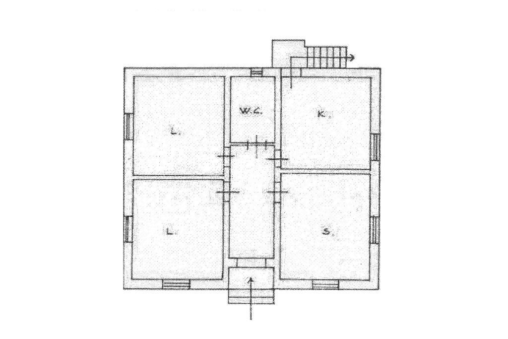
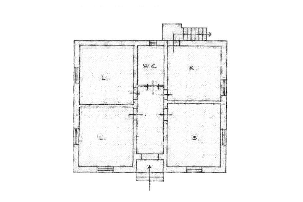
Nel comune di Marano Marchesato proponiamo in vendita una casa indipendente che si sviluppa interamente al piano terra, offrendo la comodità di un unico livello.

L'ingresso indipendente garantisce privacy e autonomia.

La casa è composta da soggiorno con termocamino, cucina abitabile, 2 comode camere da letto e bagno, ideali per chi cerca spazi funzionali e ben distribuiti.

L'immobile presenta, inoltre, una corte privata chiusa, che offre la possibilità di godere di momenti di relax e di convivialità all'aria aperta.

Un ulteriore punto di forza è la presenza di un capannone e un magazzino, che offrono ampie possibilità di utilizzo, sia per esigenze lavorative che per hobby personali.

Completa la proprietà un terreno adiacente, di natura edificabile, che aggiunge valore e versatilità all'immobile, permettendo di godere di spazi all'aperto o di sviluppare progetti futuri.

Possibilità di vendita separata: la casa con il magazzino e il capannone a € 80.000,00; solo il terreno edificabile a € 50.000,00.

Per visionare l'immobile siamo a vostra disposizione dal lunedì al sabato, telefonando in agenzia per fissare un appuntamento.


Garantiamo, inoltre, la nostra assistenza nella fase di acquisto, nel post vendita e per l'ottenimento del mutuo, mediante i consulenti finanziari della Kiron, società di mediazione creditizia del gruppo Tecnocasa, che sono a vostra disposizione, direttamente nella nostra agenzia, per una consulenza gratuita e personalizzata.

Mostra tutto

Nelle vicinanze

Scuole Scuole
Scuole
2,2 Km
Supermercati Supermercati
Conad
2,3 Km
Bar Bar
Bar Giraldi
1,9 Km
Mostra tutto

Caratteristiche

Rif.:
61144974
Piano:
Terra di 1
Totale piani:
1
Camere da letto:
2
Arredamento:
Assente
Condizionamento:
Autonomo
Mostra tutto
Prezzo Prezzo
€ 130.000
Rata mutuo Rata mutuo
€ 606 / mese
Spese annue Spese annue
€ 0
Proponi il tuo prezzoProponi il tuo prezzo

Classe Energetica

D
D
D
D
D
D
D
D
D
EP globale non rinnovabile:
99.34 kW h/m² anno
EP globale rinnovabile:
129.43 kW h/m² anno
EP invernale del fabbricato:
EP estiva del fabbricato:
Anno di costruzione:
1966
Riscaldamento:
Autonomo
Tipo impianto:
A radiatori
Tipo alimentazione:
Altro

Ti interessa visionare l'immobile?

Fissa un appuntamento  Fissa un appuntamento

Richiedi informazioni

* Questi campi sono obbligatori

Calcola il tuo mutuo

Semplice e senza impegno
Anticipo

( % )
Mutuo

( % )

pochi semplici passi

inserisci i tuoi dati
Questionario completato
Grazie per aver richiesto un appuntamento senza impegno con un nostro Consulente del Credito e Assicurativo.

Hai inserito correttamente tutti i dati necessari e a breve riceverai una e-mail con un link da convalidare per inviare i tuoi dati.
Affiliato
Studio Andreotta D.I.
Viale Della Resistenza, 51 87040 Castrolibero (CS)

Il nostro staff


  • Marzio Beniamino Franco
    Affiliato

  • Luisa Giordano
    Coordinatrice
Viale Della Resistenza, 51 87040 Castrolibero (CS)
Zona: Castrolibero - Marano P.- Marano M.
Mostra su mappa
Orari: dal lunedì al venerdì 9.00/13.00 -16.00/20.30 - sabato 9.00/13.00
Affiliato
Studio Andreotta D.I.
Viale Della Resistenza, 51 87040 Castrolibero (CS)

2025 Tecnocasa Franchising S.p.A. - P. IVA 08365160152 - Via Monte Bianco 60/A 20089 Rozzano (MI). Ogni agenzia ha un proprio titolare ed è autonoma. Privacy policy | Policy utilizzo | Cookie policy