Casa indipendente in vendita

Marano Marchesato, via San Marco
€ 95.000
6 locali 6 locali
240 Mq 240 Mq
3 bagni 3 bagni

Casa indipendente in vendita

Marano Marchesato, via San Marco

Descrizione annuncio

Nel centro di Marano Marchesato, proponiamo in vendita casa indipendente, completamente ristrutturata sia internamente che esternamente, ideale per chi cerca ampi spazi e tranquillità.

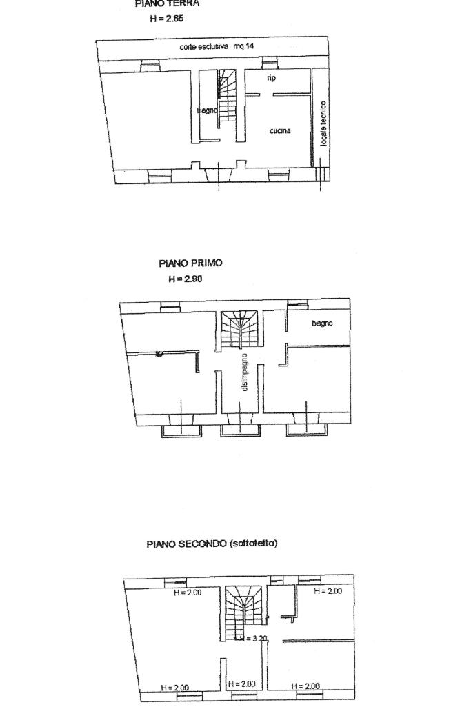
L'immobile si sviluppa su più livelli, offrendo una distribuzione funzionale degli ambienti: ampio soggiorno, cucina abitabile e bagno al primo livello; 3 comode camere da letto e bagno al secondo livello; unico ambiente e bagno al terzo livello.

Inoltre, la proprietà comprende un'adiacente casa indipendente completamente da ristrutturare, disposta su 3 livelli e collegata alla strada principale da un magazzino.

Questa soluzione abitativa rappresenta un'opportunità unica per chi desidera personalizzare gli spazi secondo le proprie esigenze, mantenendo il fascino di una costruzione storica.

La posizione centrale permette di godere della tranquillità del comune, senza rinunciare ai servizi essenziali.

Per visionare l'immobile siamo a vostra disposizione dal lunedì al sabato, telefonando in agenzia per fissare un appuntamento.

Garantiamo, inoltre, la nostra assistenza nella fase di acquisto, nel post vendita e per l'ottenimento del mutuo, mediante i consulenti finanziari della Kiron, società di mediazione creditizia del gruppo Tecnocasa, che sono a vostra disposizione, direttamente nella nostra agenzia, per una consulenza gratuita e personalizzata.

Mostra tutto

Nelle vicinanze

Scuole Scuole
Scuole
2,7 Km
Supermercati Supermercati
Conad
2,7 Km
Bar Bar
Bar Giraldi
2,4 Km
Mostra tutto

Caratteristiche

Rif.:
40239143
Piano:
Su più livelli di 3
Totale piani:
3
Camere da letto:
3
Arredamento:
Assente
Condizionamento:
Assente
Mostra tutto
Prezzo Prezzo
€ 95.000
Rata mutuo Rata mutuo
€ 451 / mese
Spese annue Spese annue
€ 0
Proponi il tuo prezzoProponi il tuo prezzo

Classe Energetica

G
G
G
G
G
G
G
G
G
EP invernale del fabbricato:
EP estiva del fabbricato:
Anno di costruzione:
1960
Riscaldamento:
Assente

Ti interessa visionare l'immobile?

Fissa un appuntamento  Fissa un appuntamento

Richiedi informazioni

Clicca su Leggi per aprire l'informativa
* Questi campi sono obbligatori

Calcola il tuo mutuo

Semplice e senza impegno
Anticipo

( % )
Mutuo

( % )

pochi semplici passi

inserisci i tuoi dati
Questionario completato
Grazie per aver richiesto un appuntamento senza impegno con un nostro Consulente del Credito e Assicurativo.

Hai inserito correttamente tutti i dati necessari e a breve riceverai una e-mail con un link da convalidare per inviare i tuoi dati.
Affiliato
Studio Andreotta D.I.
Viale Della Resistenza, 51 87040 Castrolibero (CS)

Il nostro staff


  • Marzio Beniamino Franco
    Affiliato

  • Luisa Giordano
    Coordinatrice
Viale Della Resistenza, 51 87040 Castrolibero (CS)
Zona: Castrolibero - Marano P.- Marano M.
Mostra su mappa
Orari: dal lunedì al venerdì 9.00/13.00 -16.00/20.30 - sabato 9.00/13.00
Affiliato
Studio Andreotta D.I.
Viale Della Resistenza, 51 87040 Castrolibero (CS)

2026 Tecnocasa Franchising S.p.A. - P. IVA 08365160152 - Via Monte Bianco 60/A 20089 Rozzano (MI). Ogni agenzia ha un proprio titolare ed è autonoma. Privacy policy | Policy utilizzo | Cookie policy