Trilocale in vendita

Marano Marchesato, Via dei Mille
€ 85.000
3 locali 3 locali
102 Mq 102 Mq
1 bagno 1 bagno

Trilocale in vendita

Marano Marchesato, Via dei Mille

Descrizione annuncio

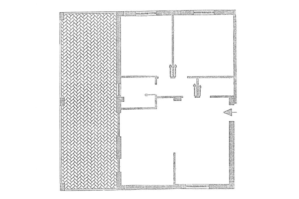
Nel comune di Marano Marchesato, proponiamo in vendita un appartamento situato al piano terra.

L'appartamento si compone di soggiorno con camino, cucina a vista, 2 camere da letto, bagno e ripostiglio.

Uno dei punti di forza è il giardino privato, perfetto per momenti di relax all'aria aperta o per chi ama il contatto con la natura. Inoltre, il terrazzo di circa 45 mq offre un ulteriore spazio esterno, ideale per cene all'aperto o per godersi momenti di tranquillità.

Completano la proprietà il posto auto nel cortile condominiale e la soffitta di circa 15 mq.

La posizione al piano terra garantisce un accesso comodo e diretto agli spazi esterni, rendendo l'immobile adatto a diverse esigenze abitative.

La palazzina è stata ristrutturata con ecobonus mediante lavori di isolamento termico con cappotto, installazione di fotovoltaico e sistemi di accumulo,sostituzione degli infissi esterni e degli impianti di climatizzazione invernali.

Per visionare l'immobile siamo a vostra disposizione dal lunedì al sabato, telefonando in agenzia per fissare un appuntamento.


Garantiamo, inoltre, la nostra assistenza nella fase di acquisto, nel post vendita e per l'ottenimento del mutuo, mediante i consulenti finanziari della Kiron, società di mediazione creditizia del gruppo Tecnocasa, che sono a vostra disposizione, direttamente nella nostra agenzia, per una consulenza gratuita e personalizzata.

Mostra tutto

Caratteristiche

Rif.:
61086838
Piano:
Terra di 3
Totale piani:
3
Posti auto:
1
Terrazzi:
1
Camere da letto:
2
Mostra tutto
Prezzo Prezzo
€ 85.000
Rata mutuo Rata mutuo
€ 404 / mese
Spese annue Spese annue
€ 0
Proponi il tuo prezzoProponi il tuo prezzo

Classe Energetica

A3
A3
A3
A3
A3
A3
A3
A3
A3
EP globale non rinnovabile:
32.57 kW h/m² anno
EP globale rinnovabile:
37.78 kW h/m² anno
EP invernale del fabbricato:
EP estiva del fabbricato:
Anno di costruzione:
1997
Riscaldamento:
Autonomo
Tipo impianto:
A radiatori
Tipo alimentazione:
Pannelli

Ti interessa visionare l'immobile?

Fissa un appuntamento  Fissa un appuntamento

Richiedi informazioni

Clicca su Leggi per aprire l'informativa
* Questi campi sono obbligatori

Calcola il tuo mutuo

Semplice e senza impegno
Anticipo

( % )
Mutuo

( % )

pochi semplici passi

inserisci i tuoi dati
Questionario completato
Grazie per aver richiesto un appuntamento senza impegno con un nostro Consulente del Credito e Assicurativo.

Hai inserito correttamente tutti i dati necessari e a breve riceverai una e-mail con un link da convalidare per inviare i tuoi dati.
Affiliato
Studio Andreotta D.I.
Viale Della Resistenza, 51 87040 Castrolibero (CS)

Il nostro staff


  • Marzio Beniamino Franco
    Affiliato

  • Luisa Giordano
    Coordinatrice
Viale Della Resistenza, 51 87040 Castrolibero (CS)
Zona: Castrolibero - Marano P.- Marano M.
Mostra su mappa
Orari: dal lunedì al venerdì 9.00/13.00 -16.00/20.30 - sabato 9.00/13.00
Affiliato
Studio Andreotta D.I.
Viale Della Resistenza, 51 87040 Castrolibero (CS)

2026 Tecnocasa Franchising S.p.A. - P. IVA 08365160152 - Via Monte Bianco 60/A 20089 Rozzano (MI). Ogni agenzia ha un proprio titolare ed è autonoma. Privacy policy | Policy utilizzo | Cookie policy