Villa a schiera d'angolo in vendita

Castrolibero, Via Colamato
€ 285.000
247 Mq 247 Mq
4 bagni 4 bagni

Villa a schiera d'angolo in vendita

Castrolibero, Via Colamato

Descrizione annuncio

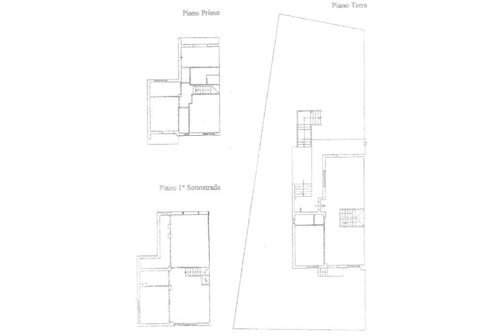
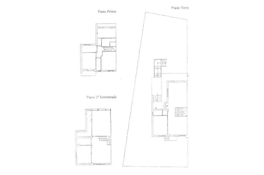
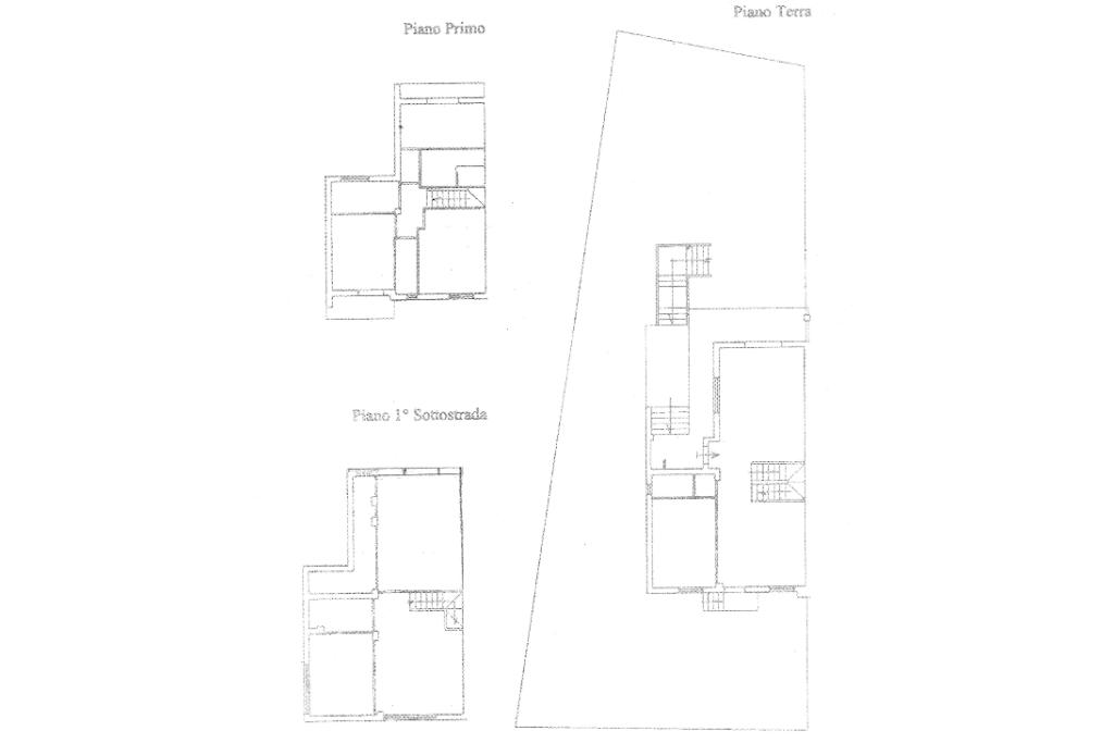
In zona residenziale proponiamo in vendita porzione angolare di villa disposta su 3 livelli.

Il primo livello è composto da ampia tavernetta con camino e cucina a vista, bagno, lavanderia, ripostiglio.

Il secondo livello è composto da salone triplo, bagno e balconi.

Il terzo livello è composto da 3 camere da letto, di cui una con cabina armadio, 2 bagni e balcone.

Completa la proprietà il giardino privato di circa 350 mq, ben curato e munito di cancello pedonale e cancello carrabile.

L'immobile si presenta ben rifinito, curato e accogliente.

Per visionare l'immobile siamo a vostra disposizione dal lunedì al sabato, telefonando in agenzia per fissare un appuntamento.

Garantiamo, inoltre, la nostra assistenza nella fase di acquisto, nel post vendita e per l'ottenimento del mutuo, mediante i consulenti finanziari della Kiron, società di mediazione creditizia del gruppo Tecnocasa, che sono a vostra disposizione, direttamente nella nostra agenzia, per una consulenza gratuita e personalizzata.

Mostra tutto

Nelle vicinanze

Ricariche auto elettriche Ricariche auto elettriche
Mendicino Rosario | EnelX
2,7 Km
Scuole Scuole
Istituto di Istruzione Superiore Statale di Castrolibero
2,6 Km
Supermercati Supermercati
Conad
2,6 Km
Mostra tutto

Caratteristiche

Rif.:
60866547
Piano:
Su più livelli di 3
Totale piani:
3
Camere da letto:
3
Arredamento:
Assente
Condizionamento:
Autonomo
Mostra tutto
Prezzo Prezzo
€ 285.000
Rata mutuo Rata mutuo
€ 1.354 / mese
Spese annue Spese annue
€ 0
Proponi il tuo prezzoProponi il tuo prezzo

Classe Energetica

G
G
G
G
G
G
G
G
G
Anno di costruzione:
2000
Riscaldamento:
Autonomo
Tipo impianto:
A radiatori
Tipo alimentazione:
Metano

Ti interessa visionare l'immobile?

Fissa un appuntamento  Fissa un appuntamento

Richiedi informazioni

Clicca su Leggi per aprire l'informativa
* Questi campi sono obbligatori

Calcola il tuo mutuo

Semplice e senza impegno
Anticipo

( % )
Mutuo

( % )

pochi semplici passi

inserisci i tuoi dati
Questionario completato
Grazie per aver richiesto un appuntamento senza impegno con un nostro Consulente del Credito e Assicurativo.

Hai inserito correttamente tutti i dati necessari e a breve riceverai una e-mail con un link da convalidare per inviare i tuoi dati.
Affiliato
Studio Andreotta D.I.
Viale Della Resistenza, 51 87040 Castrolibero (CS)

Il nostro staff


  • Marzio Beniamino Franco
    Affiliato

  • Luisa Giordano
    Coordinatrice
Viale Della Resistenza, 51 87040 Castrolibero (CS)
Zona: Castrolibero - Marano P.- Marano M.
Mostra su mappa
Orari: dal lunedì al venerdì 9.00/13.00 -16.00/20.30 - sabato 9.00/13.00
Affiliato
Studio Andreotta D.I.
Viale Della Resistenza, 51 87040 Castrolibero (CS)

2026 Tecnocasa Franchising S.p.A. - P. IVA 08365160152 - Via Monte Bianco 60/A 20089 Rozzano (MI). Ogni agenzia ha un proprio titolare ed è autonoma. Privacy policy | Policy utilizzo | Cookie policy